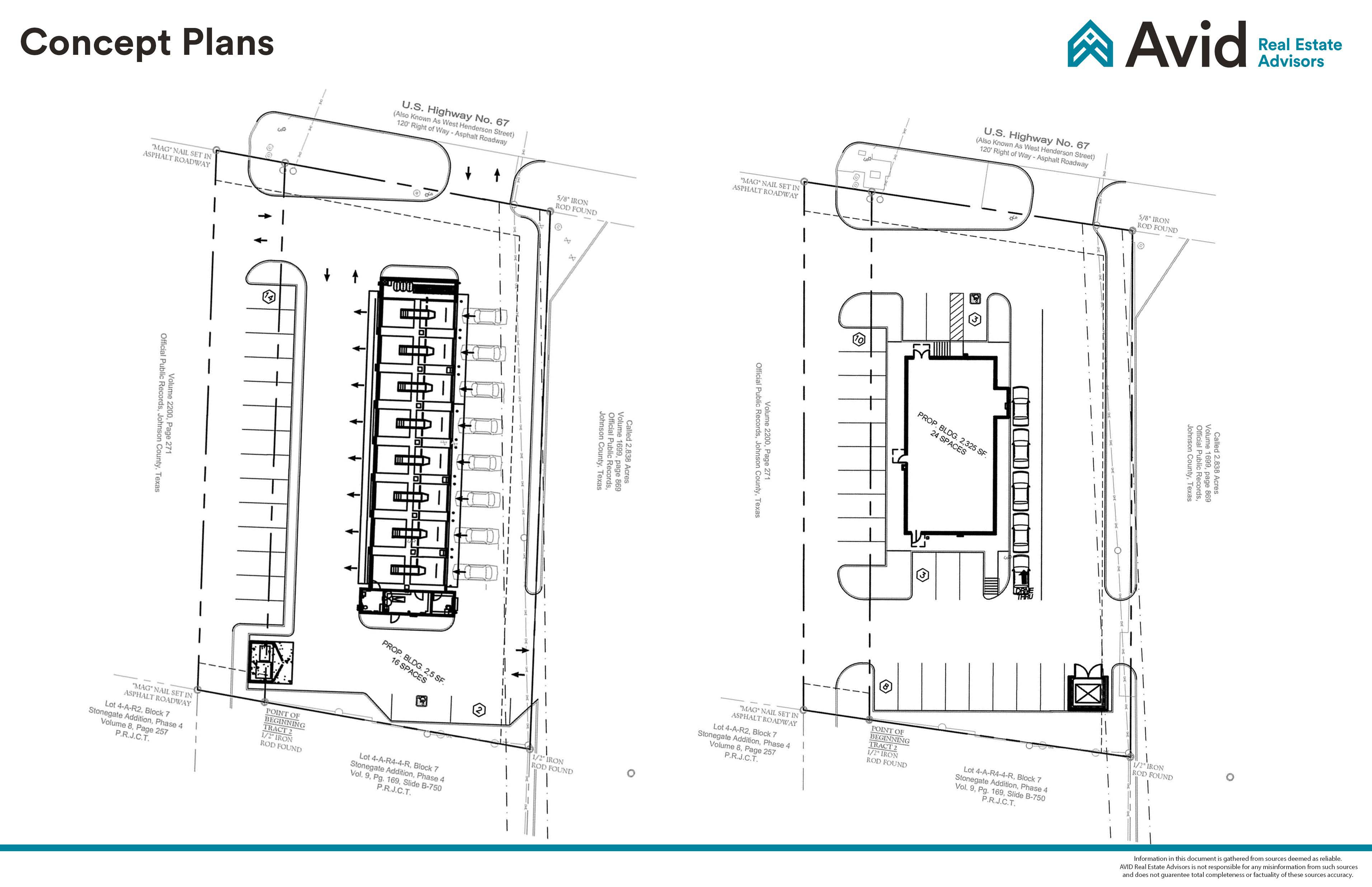
Land

25,000 SF Pad Site on Signalized Hard Corner in Cleburne, TX

1645 W Henderson St Cleburne TX, 76033
25,000 SF
  • Rare signalized hard corner on Henderson St.
  • Cinemark shadowed anchored
  • Experiencing high growth with opening of Chisholm Trail Pkwy
View Flyer contact broker
{"center":{"lat":"32.336712350975","lng":"-97.417348700468"},"controls":["navigationControl","fullscreenControl"],"id":"cartographer_field_6a17ac4318b2d","styles":"mapbox:\/\/styles\/mapbox\/streets-v11","markers":[{"id":"8380a05e-8ccc-414d-8306-45d7d7f13393","position":{"lat":"32.336709162076","lng":"-97.417352474669"},"color":null}],"zoom":13}
Area Insights Aerials

Demographics

1 Mi.

3 Mi.

5 Mi.

Population

6,133

29,295

36,186

Projected Annual Growth 2022-27

1.8%

1.3%

1.5%

Median Age

40.3

36.6

36.5

Number of Households

2,417

10,482

12,799

Avg. Household Income

$77,233

$68,356

$67,543

Med. Household Income

$59,195

$59,410

$57,769

Traffic Counts

Statistics from TXDOT 2020

Vehicles/Day

W Henderson St

16,167

Colonial Dr

6,013

Nearby Traffic Generators

  • Aldi
  • Cinemark
  • Papa John's
  • Chili's
  • Aspen Dental
  • Planet Fitness
  • U-Haul
  • Kroger
  • Big Lots
  • Tractor Supply
  • Harbor Freight Tools
  • Starbucks
  • Walmart
1 2 3
Contact us for more information